射水市二口B棟★3LDK+WIC+ユーティリティーつき新築住宅
お気に入り追加削除 このページを印刷- 物件名
- 射水市二口B棟★3LDK+WIC+ユーティリティーつき新築住宅
- 物件種別
- 新築
- 所在地
- 射水市二口1090-30[Google map]
- 価格
- 3,512万円(税込)
- 交通
- あいの風とやま鉄道「越中大門」歩21分
- コミュニティバス「大門地区センター前」徒歩4分
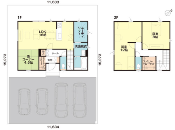
- 間取り
- 3(L)DK
- 築年月
- 2025年6月 (築0年)
- 構造
- 木造
畳の癒やしと、家事ラク動線。家族の時間がもっと広がる、20.5帖の開放感
◆アイビス新築限定キャンペーン
①仲介手数料無料!通常121万円のところ0円です
②5万円ギフトカードプレゼント
③お引っ越し割引券プレゼント
◆毎月78,418円~返済可、頭金なしボーナス払いなしもOK!
◆おススメポイント
・綺麗な分譲地内!
・大門小徒歩9分!子育て安心です♪
・「+4.5帖」のゆとり。畳コーナーのあるLDK
・家事効率を極める「ユーティリティ」動線
・収納と駐車の圧倒的なキャパシティ
・IHシステムキッチン
・カップボード
・食器洗浄乾燥機
・エアコン2台
・浴室暖房乾燥機
・断熱玄関ドア(カードキー)
・モニター付きインターホン
・LED照明器具
◆構造
・制震ダンパー「MAMORY」標準搭載
・防腐・防蟻処理済み材木使用(保証10年)
・高気密・高断熱仕様(ZEH基準)
・ガルバニウム鋼板屋根
射水市二口B棟★3LDK+WIC+ユーティリティーつき新築住宅の詳細情報
周辺環境
https://www.google.com/maps/place/%E3%80%92939-0234+%E5%AF%8C%E5%B1%B1%E7%9C%8C%E5%B0%84%E6%B0%B4%E5%B8%82%E4%BA%8C%E5%8F%A3%EF%BC%91%EF%BC%91%EF%BC%90%EF%BC%90%E2%88%92%EF%BC%91%EF%BC%91/@36.72199,137.0490016,18.25z/data=!4m15!1m8!3m7!1s0x5ff7834752321309:0xbf9891c77dc76374!2z44CSOTM5LTAyMzQg5a-M5bGx55yM5bCE5rC05biC5LqM5Y-j77yR77yQ77yZ77yY4oiS77yR!3b1!8m2!3d36.7218075!4d137.0498544!16s%2Fg%2F11c4w5_bpk!3m5!1s0x5ff783475f41e831:0x280b2e6f992649a1!8m2!3d36.7223328!4d137.0501362!16s%2Fg%2F11c4njz5q9?authuser=0&entry=ttu&g_ep=EgoyMDI2MDExOS4wIKXMDSoASAFQAw%3D%3D
- 最寄駅
バス停 - あいの風とやま鉄道「越中大門」歩21分
- コミュニティバス「大門地区センター前」徒歩4分
- 小・中学校
- 大門小学校
- 大門中学校
- 周辺環境
- サンコー大門店まで1170m
- ファミリーマートまで1250m
- クスリのアオキ新大門店まで1200m
- 射水市子ども子育て総合支援センター大門児童館まで200m
- 射水市 二口コミュニティセンターまで450m
- 道振整形外科まで660m
- グリーンパークだいもんまで721m
- 大芳鮮魚店まで480m
- 射水市立大門きらら保育園まで750m




















お気軽に『窪多』まで